3 Bedroom Detached For Sale   |   Ballards Way, South Croydon, CR0 5RG   |    £650,000

Key Features

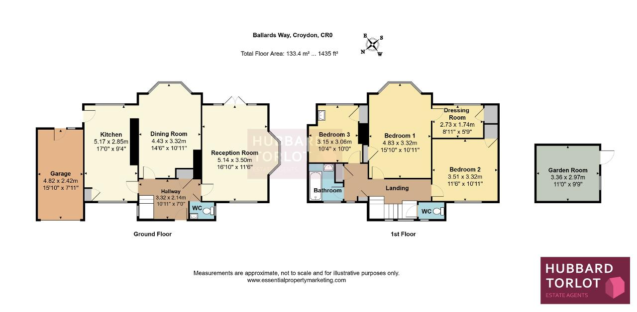
  • 3 bedroom detached house
  • 2 reception rooms
  • Ground floor WC
  • Principal bedroom with dressing room
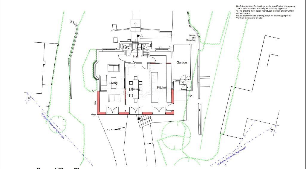
  • Planning permission granted
  • Garage & Driveway
  • Extensive garden
  • NO ONWARD CHAIN
  • Planning ref 25/00391/HSE
  • Modernisation required

Summary

CHAIN FREE - We are delighted to offer to the market this most attractive 1930's 3 bedroom detached family home. Requiring refurbishment throughout the property features an entrance hall, kitchen (not currently fitted with a sink but the vendor will ensure work is done where necessary to meet a lenders requirements), two reception rooms with the living room offering a triple aspect and ground floor cloakroom. To the first floor are three bedrooms, the principle with a dressing room and 2 further bedrooms and family bathroom. Permission has been granted for a two storey rear extension to create a 4 bedroom detached family home. Externally there is a garage and off street parking and a huge mature rear garden. This is a property not to be missed so please call now to arrange your viewing. Council Tax F

Location

Ballards Way is a popular road located within close proximity of numerous highly regarded schools to include Royal Russell, Coloma, Whitgift and Croydon High. Bus routes to include the 64 route are close by and serve Central Croydon and beyond. In addition Coombe Lane tram stop is within approximately 10/15 minutes walk providing a reliable service into East Croydon making this home ideally positioned for those looking to commute but at the same time close to popular schools making this an ideal family home. Coombe Woods are minutes away providing a beautiful natural open space ideal for dog walking and leisurely strolls.

Energy Efficiency

EPC Graph

Additional Information

For further information on this property please call 020 8651 6679 or e-mail info@hubbardtorlot.co.uk

Contact Us

133 Addington Road, Selsdon, South Croydon, CR2 8LH

020 8651 6679

info@hubbardtorlot.co.uk


Key Features

  • 3 bedroom detached house
  • Ground floor WC
  • Planning permission granted
  • Extensive garden
  • Planning ref 25/00391/HSE
  • 2 reception rooms
  • Principal bedroom with dressing room
  • Garage & Driveway
  • NO ONWARD CHAIN
  • Modernisation required

Share this property

Property Search

Share this property