2 Bedroom End Terraced For Sale   |   Junction Road, South Croydon, CR2 6RA   |   Offers in Excess of £400,000

Virtual Tour

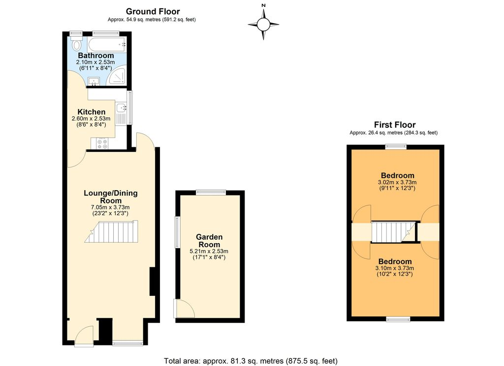
Key Features

  • character 2 bed EOT family house
  • Through Lounge
  • Two double bedrooms
  • Downstairs bathroom
  • Fitted Kitchen
  • Old brick built bake house in garden
  • OSP for one small car
  • Beautiful Character Features Throughout
  • Mature rear garden

Summary

A rare opportunity to acquire a delightful two double-bedroom home situated on a highly desirable tree-lined road in South Croydon.

The property features two generously sized double bedrooms and a spacious open-plan living and dining area, ideal for both relaxing and entertaining. To the rear is a beautiful, established garden with mature trees including magnolia, Californian lilac, apple, and plum. Two York stone patios further enhance this attractive outdoor space.

The fitted shaker-style kitchen includes a newly installed 1½ bowl Blanco stainless steel sink and tap, an integrated fridge and freezer, and a Miele gas hob.

The home retains many charming period features along with carefully considered additions, including a magnificent Georgian-style stained-glass front door and a traditional three-piece Royal Doulton bathroom suite.

Recently redecorated in neutral tones and fitted with new 100% wool carpets throughout, the property is ready for immediate occupation and will appeal both to discerning buyers and to landlords seeking to expand their portfolio.

Conveniently located opposite Whitgift School and within close proximity to local shops, restaurants, bus routes, and South Croydon train station, the property is ideally placed for commuters travelling into London.

Dating back to circa 1927, the property is believed to have originally been a bakery and includes a charming brick-built "bake house," previously used as a studio with its own electricity supply.

Additional benefits include off-street parking for one small car.

Location

Situated in a highly sought-after area, the property is ideally located within easy reach of Central Croydon and excellent transport links, as well as a wide range of local amenities, shops, and restaurants.

Transport

South Croydon Railway Station – Approximately 0.5 miles away, offering direct services to London Victoria Station and London Bridge Station.

East Croydon Railway Station – Around 1.5 miles away, a major transport hub providing fast and frequent services to London, Gatwick Airport, and Brighton.

Tramlink – Offers convenient connections across Croydon and to neighbouring areas.

Bus Routes – Multiple local and regional services linking to Central Croydon, Purley, Thornton Heath, and surrounding districts.

Road Links – Easy access to the A232 and A23, providing convenient routes to the M25 motorway and the wider motorway network.

Energy Efficiency

EPC Graph

Additional Information

For further information on this property please call 020 8651 6679 or e-mail info@hubbardtorlot.co.uk

Contact Us

335 Limpsfield Road, Sanderstead, South Croydon, Surrey, CR2 9BY

020 8651 6679

info@hubbardtorlot.co.uk


Key Features

  • character 2 bed EOT family house
  • Two double bedrooms
  • Fitted Kitchen
  • OSP for one small car
  • Mature rear garden
  • Through Lounge
  • Downstairs bathroom
  • Old brick built bake house in garden
  • Beautiful Character Features Throughout

Share this property

Property Search

Share this property